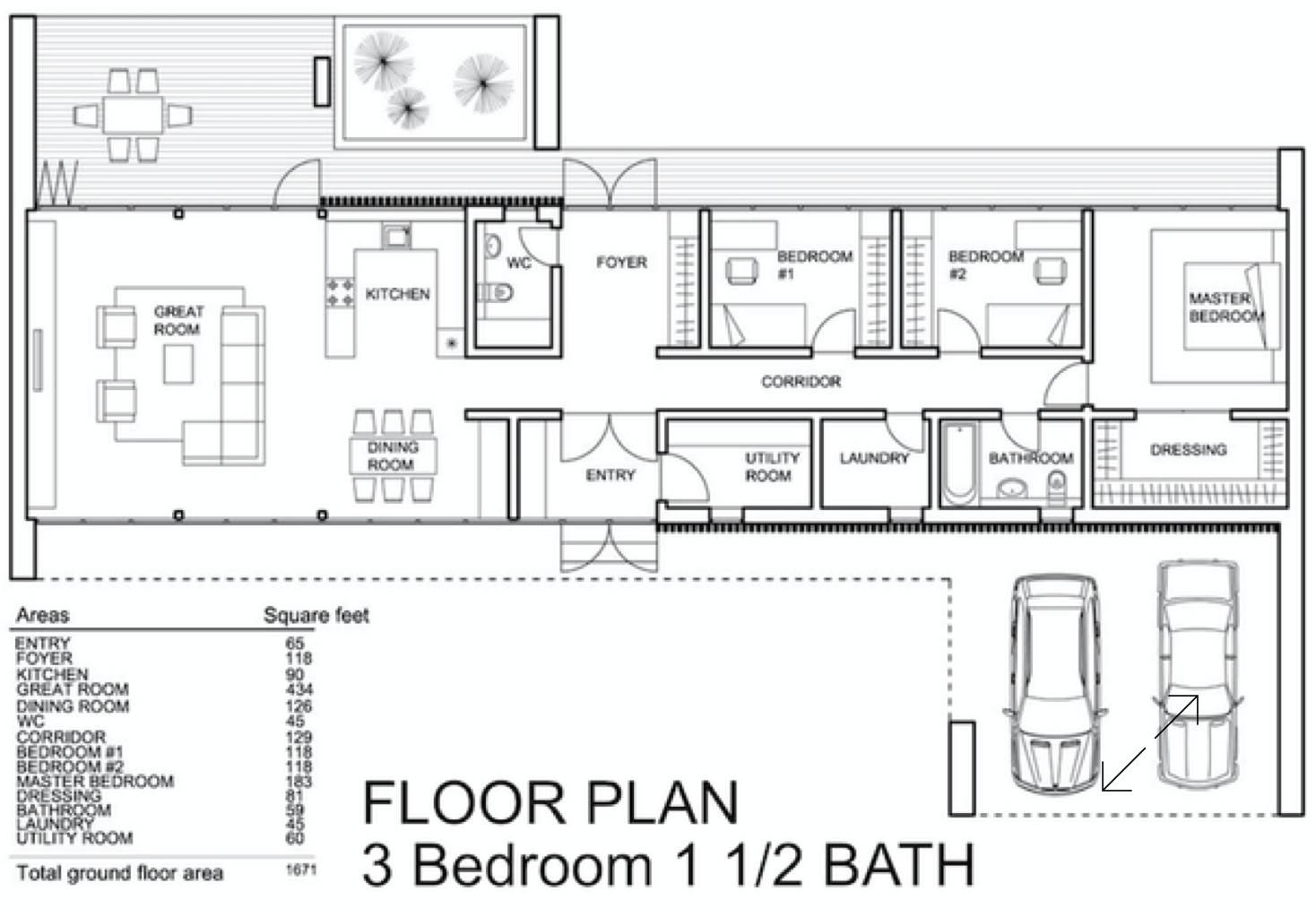
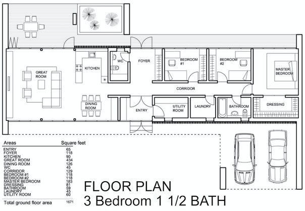
Below is one project at 1671sf as pictured and up for sale. The cost is $349,000 as pictured. A slightly larger version at 2400sf is only $399. Just because the price is low doesn’t mean we're cutting any corners. Quality is what we strive for at a reasonable price. We are using environmentally compatible materials. A steel framework, that resist moister, termites and holds up against the elements. Engineered to stand up against earthquakes and last a long time with low maintenance. Decks that are the NEW composite recycled materials that need minimal maintenance.

Front

YES WE CAN BUILD YOUR DESIGN. WITH A SKETCH OR FINISHED DRAWINGS.

Plans may be altered to suit your needs! We offer full interior design by Carrie Kaiser. Carrie was an Ikea interior designer in Germany for 5 years. She now lives and works in Vail Colorado. Her experienced, creative touch can offer a complete turn key“Ready to Wear” home with Your personal touch. She can be onsite or have virtual meetings with you while picking out all of the amenities you need including furniture, cabinets etc. Many different styles to choose from that will fit your budget. From the stove to the towels we can have it ready for you to move in at your convenience.

TRADITIONAL STYLES AVAILABLE

CALL FOR PRICE

4-5000sf

© Sun and Soul Homes LLC 2020